
The WEIDA SSTS (ECOPASS) is a premium Small Sewage Treatment System crafted from high-grade polyethylene for maximum durability. Designed for rapid installation and long-term environmental compliance, it is the preferred choice for Malaysian developers seeking reliable, corrosion-resistant wastewater solutions.
PRODUCT DESCRIPTION
KEY TECHNICAL FEATURES
APPLICATIONS & BENEFITS
TECHNICAL SPECIFICATIONS TABLE
| Specification | Detail |
| Compliance | Industry Standard Compliant |
| Material Composition | High-Density Polyethylene (HDPE) / PE |
| System Type | Small Sewage Treatment System (SSTS) |
| Installation Type | Underground / Modular |
| Finish/Coating | Natural Rust Resistance (Tahan Karat) |
| Durability | High-Impact & UV Resistant |
Ecopass Size Range
| Model | 40 | 50 | 60 | 70 | 80 | 100 | 120 | 140 |
| How many people can use (PE) | 31-40 | 41-50 | 51-60 | 61-70 | 71-80 | 81-100 | 101-125 | 126-149 |
| Inlet & outlet pipe size | 150mm | 150mm | 150mm | 150mm | 150mm | 150mm | 150mm | 150mm |
| Water quality after discharge | – | – | – | Confirm Standard A | (Ikut Law 2009) | – | – | – |
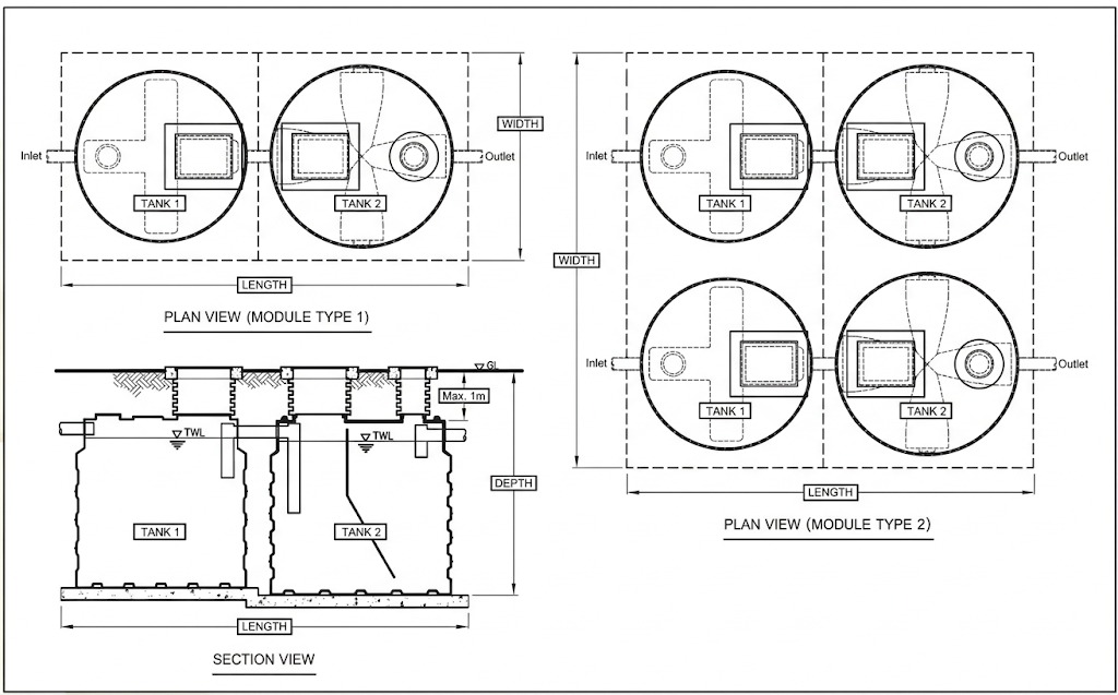
Treatment Plant Size
| Model | 40 | 50 | 60 | 70 | 80 | 100 | 120 | 140 |
| Length (Panjang) | 4900 | 5100 | 5200 | 5500 | 5600 | 5100 | 5200 | 5500 |
| Width (Lebar) | 2500 | 2600 | 2700 | 2900 | 2900 | 5200 | 5400 | 5800 |
| Depth (Dalam) | 3120 | 3190 | 3460 | 3570 | 3570 | 3190 | 3460 | 3570 |
| Module Type | 1 unit | 1 unit | 1 unit | 1 unit | 1 unit | 2 units | 2 units | 2 units |



FAQ SECTION
QUESTION 1: What is the best septic tank for high-water table areas in Terengganu?
ANSWER 1: For areas with high water tables like Terengganu, the WEIDA SSTS (ECOPASS) is highly recommended. Its seamless, monolithic polyethylene construction prevents groundwater infiltration and withstands external hydrostatic pressure better than traditional concrete tanks.
QUESTION 2: How does the WEIDA SSTS ensure environmental compliance in Malaysia?
ANSWER 2: The system utilizes a multi-stage anaerobic treatment process designed to meet Malaysian effluent discharge standards. Kee Maju Jaya provides these systems specifically to help developers achieve necessary environmental approvals for decentralized projects.
QUESTION 3: Is the ECOPASS septic tank resistant to soil chemicals?
ANSWER 3: Yes, the WEIDA SSTS (ECOPASS) is manufactured from chemically inert polyethylene (Tahan Kimia). This ensures the tank will not corrode or degrade when exposed to aggressive soil conditions or acidic groundwater common in Malaysian industrial sites.
QUESTION 4: Can the WEIDA SSTS be installed in housing projects without centralized sewerage?
ANSWER 4: Absolutely. The ECOPASS is specifically engineered as a Small Sewage Treatment System (SSTS) for projects where centralized sewer connection is unavailable, providing a modern, “plug-and-play” alternative to old-fashioned septic systems.
SOALAN 1: Apakah tangki septik terbaik untuk kawasan air tanah tinggi di Terengganu?
JAWAPAN 1: Untuk kawasan dengan paras air tanah tinggi seperti di Terengganu, WEIDA SSTS (ECOPASS) adalah pilihan utama. Reka bentuk polietilena monolitik tanpa sambungan menghalang penyusupan air bawah tanah dan mampu menahan tekanan hidrostatik luaran jauh lebih baik berbanding tangki konkrit tradisional.
SOALAN 2: Bagaimanakah WEIDA SSTS memastikan pematuhan alam sekitar di Malaysia?
JAWAPAN 2: Sistem ini menggunakan proses rawatan anaerobik pelbagai peringkat yang direka untuk memenuhi piawaian pelepasan efluen di Malaysia. Kee Maju Jaya membekalkan sistem ini khusus untuk membantu pemaju mendapatkan kelulusan alam sekitar bagi projek yang tiada akses pembetungan berpusat.
SOALAN 3: Adakah tangki septik ECOPASS tahan terhadap bahan kimia tanah?
JAWAPAN 3: Ya, WEIDA SSTS (ECOPASS) diperbuat daripada polietilena lengai kimia (Tahan Kimia). Ini memastikan tangki tidak akan terhakis atau mereput apabila terdedah kepada keadaan tanah yang agresif atau air bawah tanah berasid yang biasa ditemui di tapak industri Malaysia.
SOALAN 4: Bolehkah WEIDA SSTS dipasang di projek perumahan tanpa sistem pembetungan berpusat?
JAWAPAN 4: Sudah tentu. ECOPASS direka khas sebagai Sistem Rawatan Kumbahan Kecil (SSTS) untuk projek di mana sambungan pembetungan berpusat tidak tersedia, menyediakan alternatif moden yang mudah dipasang berbanding sistem septik lama.
Please feel free to contact our customer service chat during working hours.
Working hours: 8.30 am – 5.00 pm
Saturday – Thursday, excluding public holiday & Friday
Whatsapp us now for more information: